Table of Contents
The estimation process is the most expensive and most painful part of running a specialty contracting business, and it is the part that AI is about to change completely.
This applies whether you are running a mechanical firm, an HVAC company, a cable installer, a plumbing company, a roofing company, a flooring company, or a low voltage service provider that installs TV, internet, security, and cameras for your customers. It applies to companies that do ladders and fire rated doors, and to companies that do windows and shutters. The trade changes from one business to the next but the estimation work underneath is the same. Somebody has to open the architectural drawings, count the objects, measure the lengths, compare what they found to a specification, get pricing from vendors, and turn the whole thing into a proposal. By the time that proposal goes out the door, an estimator has burned a day or two on a single bid.
Why Manual Takeoffs Are Costing More Than You Think
This is where the cost shows up, and it is bigger than most owners realize. If your business has two estimators making 75,000 dollars a year each, and half of their time goes into manual takeoff, that is 75,000 dollars of labor every year tied up in work that AI can do. That is the cost you can see. The cost you cannot see is bigger. Every hour an estimator spends counting outlets is an hour they are not spending on the next bid. Most specialty contractors are losing bids they should be winning, not because their pricing is wrong, but because they did not have time to bid the job. When estimation is automated, the same two estimators can put out two to three times more bids than before. That is where the real revenue lives, and that is the opportunity that is sitting in front of every specialty contractor right now.
What Changes When Estimating Is Automated with AI
AlphaBOLD has been building this. For a cable installer we built a solution that takes architectural drawings, calibrates the scale automatically, measures the length of the backbone cable from the MDF to each IDF across multiple sheets, counts the data outlets on every plumbing drawing, and produces an Excel worksheet that the estimator can review and send out as a proposal. The work that used to take days is now done in minutes.


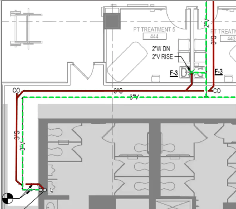
The same approach works across trades. For a plumbing company we detected the length of the pipe and the fittings directly from the drawings.

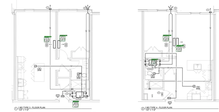
For an HVAC company we were able to detect the HVAC units from the mechanical drawings.

Why Traditional Estimating Tools Fall Short
The natural question is what about the tools that already exist. Tools like Bluebeam have been around for a long time and most estimators are familiar with them. The honest answer is that those tools are still operator driven. Someone has to click through every page and tell the tool what to look for. Even then objects get missed, and the tool does the detection but does not automate the rest of the workflow. The estimator still has to take the output, compare it to the specification, get the pricing, and build the proposal by hand. AI changes the whole picture. The detection is automated, the comparison to specification is automated, the pricing is automated, and the proposal is generated. The estimator moves from doing the work to validating the work, which is where their judgment actually adds value. AlphaBOLD has built a human in the loop interface so the estimator can review what AI produced and make corrections before anything goes out to the prospect. The estimator stays in control. The grunt work goes away.
The specialty contractors that adopt AI for estimation in the next two to three years are going to pull ahead of the ones that do not. The work is real, the technology is ready, and the economics are obvious. The only question left is who moves first.
If this is something you want to explore for your business, book a 30-minute call with us. We will walk you through what we have built, show you examples from contractors in similar trades, and talk through what an engagement could look like.
What This Looks Like for Your Estimating Team
If you are still doing takeoffs manually, you already know where the time is going. The question is what changes if that part is handled for you.
We can take a set of your actual drawings, run them through the system, and show you exactly what comes out. Quantities, lengths, counts, and a draft you can review. No theory. Just your workflow, faster.
Request a Consultation






